One City Center: Redesigning for Flexibility 


The workplace has changed—and so has the way we design space. At One City Center, we looked at a former two-level WeWork suite and asked: how could one floor now serve multiple tenants of varying sizes and evolving needs? 


Originally, the lower level of the suite functioned as part of a single-tenant environment, connected to the upper level by a decorative open stair. When WeWork began downsizing nationally, the landlord sought to reclaim the floor and reposition it for a new generation of tenants. What made this opportunity compelling was the complexity of the floor plate itself. The challenge wasn’t simply dividing the space—it was rethinking circulation, entry sequences, and usable square footage while preserving what already worked. 


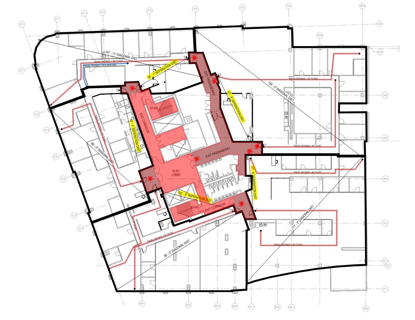
The first step was removing the open stair so the landlord could reclaim the full floor. From there, the design challenge became clear: create several independent, leasable suites while preserving life-safety features, fire-rated corridors, and as much of the existing wall and door infrastructure as possible. Every decision balanced practicality with clarity. Maintaining circulation and egress routes meant each suite could feel distinct while respecting the building’s safety systems. 

Because the floor plate was complex, the design process began with hand sketches layered directly over the existing layout. These sketches tested suite sizes, flow, and adjacency, ensuring no dead corners or inefficient spaces were created. Three conceptual schemes emerged: a three-suite layout, a four-suite layout, and a five-suite layout. The five-suite plan was chosen for its balance of efficiency, clarity, and flexibility. It created clean divisions between suites, maintained logical circulation, and preserved significant portions of the existing layout. 


The resulting design also prioritized adaptability. While the market currently favors suites in the 6,000–8,000-square-foot range, the new layout allows suites to combine or subdivide as tenant needs evolve. Two smaller suites can merge into a 6,500-square-foot offering; multiple suites can combine into a 12,000-square-foot space; or the entire 32,000-square-foot floor can function as a single tenant footprint.  


One City Center demonstrates dl-Design Studio’s approach: thoughtful, deliberate design that balances function, flexibility, and human experience. By studying every wall, testing multiple configurations, and respecting life-safety requirements, the project transformed a once single-purpose suite into a series of spaces that can evolve with the market and the people who will occupy them. It’s an example of how careful planning, strategic reuse, and conceptual exploration can create adaptable environments that serve both tenants and landlords effectively. 


Back to Journal

Previous
Previous

Architecture at the In-Between

Next
Next

Working with an Architect: A Guide for First-Time Clients